Description
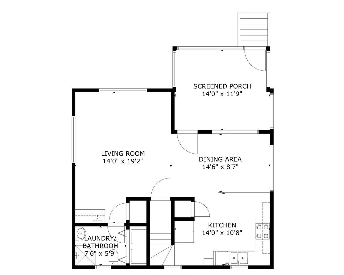
Light House is a three-story oceanfront home in Garden City Beach, offering 4 bedrooms, 3 bathrooms, and 1,620 heated square feet of coastal living. Designed for relaxation and entertaining, this home comfortably accommodates up to 10 guests. A brand-new roof (installed in December 2024) ensures durability, while low-maintenance vinyl siding and luxury vinyl flooring enhance its appeal. True to its name, Light House stands out with its distinctive cupola featuring a beacon light, reminiscent of a classic lighthousea fitting touch that embodies its coastal charm. The main level features an open-concept design with an oceanfront living room, wet bar, and ceiling fan, creating a bright and welcoming space. The white kitchen with Corian countertops flows into the dining areaperfect for hosting meals with family and friends. A screened porch extends the living space outdoors, allowing you to enjoy the coastal breeze year-round. A full bathroom and laundry room complete this level. The second floor offers three bedrooms with ceiling fans and two full bathrooms, including two oceanfront bedrooms with balcony access. The primary suite features a walk-in closet, an ensuite bathroom with a garden tub, a separate shower, and direct balcony access. The third-floor loft serves as a fourth bedroom or flex space, offering a private balcony with sweeping ocean and inlet views. Outdoor highlights include an oceanfront deck, a screened porch, covered parking, an outdoor shower, and a storage shed. Located just 0.4 miles south of Garden City Pier, this home is steps away from live music, dining, and entertainment. It's also 1.7 miles from Gulfstream Caf and Marlin Quay Marina, providing quick access to boat slips and waterfront dining. Nearby attractions include Brookgreen Gardens, Huntington Beach State Park, Myrtle Beach Boardwalk, and Broadway at the Beach. With easy access to Hwy 17, Hwy 544, and Carolina Bays Parkway, the home is approximately 30 minutes from Myrtle Beach International Airport, with Charleston and Wilmington within a two-hour drive. Whether you're looking for a primary residence, vacation home, or investment property, Light House offers prime oceanfront living with strong rental potential. Request the home inspection report and explore the home virtually with the Matterport 3D Tour: www.bit.ly/547SWaccamawDr. Adding a pool is not feasible due to space constraints.
-
4BEDS
-
0.17ACRES
-
3BATHS
-
01/2 BATHS
-
1,620SQFT
-
$0$/SQFT
School Information
Description
Light House is a three-story oceanfront home in Garden City Beach, offering 4 bedrooms, 3 bathrooms, and 1,620 heated square feet of coastal living. Designed for relaxation and entertaining, this home comfortably accommodates up to 10 guests. A brand-new roof (installed in December 2024) ensures durability, while low-maintenance vinyl siding and luxury vinyl flooring enhance its appeal. True to its name, Light House stands out with its distinctive cupola featuring a beacon light, reminiscent of a classic lighthousea fitting touch that embodies its coastal charm. The main level features an open-concept design with an oceanfront living room, wet bar, and ceiling fan, creating a bright and welcoming space. The white kitchen with Corian countertops flows into the dining areaperfect for hosting meals with family and friends. A screened porch extends the living space outdoors, allowing you to enjoy the coastal breeze year-round. A full bathroom and laundry room complete this level. The second floor offers three bedrooms with ceiling fans and two full bathrooms, including two oceanfront bedrooms with balcony access. The primary suite features a walk-in closet, an ensuite bathroom with a garden tub, a separate shower, and direct balcony access. The third-floor loft serves as a fourth bedroom or flex space, offering a private balcony with sweeping ocean and inlet views. Outdoor highlights include an oceanfront deck, a screened porch, covered parking, an outdoor shower, and a storage shed. Located just 0.4 miles south of Garden City Pier, this home is steps away from live music, dining, and entertainment. It's also 1.7 miles from Gulfstream Caf and Marlin Quay Marina, providing quick access to boat slips and waterfront dining. Nearby attractions include Brookgreen Gardens, Huntington Beach State Park, Myrtle Beach Boardwalk, and Broadway at the Beach. With easy access to Hwy 17, Hwy 544, and Carolina Bays Parkway, the home is approximately 30 minutes from Myrtle Beach International Airport, with Charleston and Wilmington within a two-hour drive. Whether you're looking for a primary residence, vacation home, or investment property, Light House offers prime oceanfront living with strong rental potential. Request the home inspection report and explore the home virtually with the Matterport 3D Tour: www.bit.ly/547SWaccamawDr. Adding a pool is not feasible due to space constraints.
© 2026 Coastal Carolinas Association of REALTORS® MLS. All rights reserved. IDX information is provided exclusively for consumers' personal, non-commercial use and may not be used for any purpose other than to identify prospective properties consumers may be interested in purchasing. Information is deemed reliable but is not guaranteed accurate by the MLS or Jessica Costa | Keller Williams Pawley's Island. The data relating to real estate for sale or lease on this web site comes in part from CCAR. Real estate listings held by brokerage firms other than Jessica Costa | Keller Williams Pawley's Island are marked with the CCAR logo or an abbreviated logo and detailed information about them includes the name of the listing broker.
Data last updated: 2026-04-15T15:20:53.157.